sema ZANUSSI523(REŠENO)
Urednici: goranfri,nike,sim,Honorarac
Pravila foruma
BT-expert info - BTexpert forumi
U naslov teme prvo pisati ime proizvođača, zatim oznake modela bez crtica i razmaka i kratak opis kvara. U post obavezno upisati ID ili EAN oznake sa poleđine aparata u suprotnom tema će biti obrisana.
Praktikujemo da na kraju opišemo kako smo rešili problem. Zatim zatvorimo temu >UPUTSTVO<
PRILIKOM POSTAVLJANJA PITANJA U VEZI ELEKTRONSKOG MODULA OBAVEZNO POPIŠITE SVE OZNAKE sa ploče i sa nalepnica, dobro bi došla i po koja fotografija.
BT-expert info - BTexpert forumi
U naslov teme prvo pisati ime proizvođača, zatim oznake modela bez crtica i razmaka i kratak opis kvara. U post obavezno upisati ID ili EAN oznake sa poleđine aparata u suprotnom tema će biti obrisana.
Praktikujemo da na kraju opišemo kako smo rešili problem. Zatim zatvorimo temu >UPUTSTVO<
PRILIKOM POSTAVLJANJA PITANJA U VEZI ELEKTRONSKOG MODULA OBAVEZNO POPIŠITE SVE OZNAKE sa ploče i sa nalepnica, dobro bi došla i po koja fotografija.
sema ZANUSSI523(REŠENO)
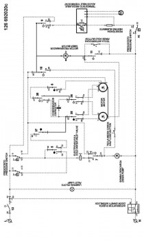
potrebna šema od veš masine ZANUSSI 523
Zadnja izmena: lackan, dana 28 Jun 2010, 22:46, ukupno menjano 2 puta.
- jaro
- bela tehnika

- Postovi: 1286
- Pridružen: 21 Jun 2009, 11:53
- Location: stara pazova
- Contact person: jaro
- Specialty: whitegoods
Re: sema ZANUSSI523
....a problem na masini je-?
Bez alata nema zanata!.....a bez znanja dzaba ti alat!
Re: sema ZANUSSI523
od iste je viklovan motor,vikler nije uzeo merodavne podatke,zato mi je potrebna razvijena sema da bih mogao ponovo da ga povezem
motor ima 7 izlaza (sihroni)
motor ima 7 izlaza (sihroni)
- ALEKSA
- _

- Postovi: 94
- Pridružen: 12 Okt 2008, 12:15
- Location: Krusevac
- Warranty service: Gorenje, Beko, Bira, Candy, Whirlpool, Kronus, Koncar,Vox, Vivax, Ardo,NordStar, Frozzini,LG,Galanc,Venting,Fujitsu ,Daikin,Toshiba,Tadiran,Midea,Aux, Haier,Panasonic,Samsung, Mitsubishi,TV Adler,Vox,Fox,Gruding,LG
- Contact person: ACA
- Phone number: 0038137456160
- Lokacija: Krusevac
- Kontakt:
Re: sema ZANUSSI523
druze puno se zahvaljujem
da nije bilo seme nista nebi uradio
sad je sve ok
da nije bilo seme nista nebi uradio
sad je sve ok
- kisko
- Preminuo
- Postovi: 2054
- Pridružen: 12 Jun 2007, 01:51
- Location: Kovilj-na kraj sveta
- Specialty: tv-multimedia
- Lokacija: Kovilj-Novi sad
Re: sema ZANUSSI523
Ako je RESENO dodaj to u naslov prvog posta ove teme 
uvek ima nesto interesantno
-
- Slične teme
- Odgovori
- Pregledano
- Zadnji post
-
-
Potrebna šema programatora "ELBI" T100 12441202 (REŠENO)
napisao jazak » 07 Apr 2011, 23:40 » u VEŠ MAŠINE - 3 Odgovori
- 1136 Pregledano
-
Zadnji post napisao jazak
09 Apr 2011, 21:03
-
-
- 2 Odgovori
- 907 Pregledano
-
Zadnji post napisao Hazbo
17 Sep 2011, 21:13
-
- 1 Odgovori
- 592 Pregledano
-
Zadnji post napisao milan
11 Okt 2012, 22:37
-
- 2 Odgovori
- 777 Pregledano
-
Zadnji post napisao vrndzo
08 Dec 2012, 08:16
-
- 5 Odgovori
- 1257 Pregledano
-
Zadnji post napisao steticbozidar
30 Mar 2013, 16:27
-
-
Gorenje WA63080 Šema upravljačkog modula PG3 REŠENO
napisao ekoproba@gmail.com » 24 Feb 2014, 13:16 » u VEŠ MAŠINE - 8 Odgovori
- 4825 Pregledano
-
Zadnji post napisao sim
17 Nov 2021, 01:12
-
-
- 1 Odgovori
- 859 Pregledano
-
Zadnji post napisao benkovac
22 svi 2016, 00:07
-
-
eida masina za susenje vesa potrebna sema
napisao Mega Elektro SU » 18 Feb 2009, 22:09 » u VEŠ MAŠINE - 2 Odgovori
- 2137 Pregledano
-
Zadnji post napisao glozanski
18 Mar 2009, 10:52
-
