ISKRA CORONA ŠTEDNJAK 2 plin -2 struja molim za pomoć

Forum za sve ostale aparate kojih nema u gornjim forumima.

Urednici: goranfri,nike,sim,Honorarac

Pravila foruma
BT-expert info - BTexpert forumi
U naslov teme prvo pisati ime proizvođača, zatim oznake modela bez crtica i razmaka i kratak opis kvara. U post obavezno upisati ID ili EAN oznake sa poleđine aparata u suprotnom tema će biti obrisana.
Praktikujemo da na kraju opišemo kako smo rešili problem. Zatim zatvorimo temu >UPUTSTVO<
PRILIKOM POSTAVLJANJA PITANJA U VEZI ELEKTRONSKOG MODULA OBAVEZNO POPIŠITE SVE OZNAKE sa ploče i sa nalepnica, dobro bi došla i po koja fotografija.
Baki1105
_
_
Postovi: 7
Pridružen: 01 Mar 2011, 07:34
Location: Srbija,Uzice

ISKRA CORONA ŠTEDNJAK 2 plin -2 struja molim za pomoć

Post napisao Baki1105 » 19 Jun 2015, 19:43

stednjak-2plin-2struja-iskra-corona-slika-47699606.jpg
Poštovani prijatelji molim vas za pomoć....
Evo kao prvo da se izvinim ako nešto nisam dobro odradio,da bih postavio temu i sliku šporeta da bi ste znali o kom modelu je reč.

Molim vas za pomoć ukoliko je ko u mogućnosti da mi izađe u u susret da mi pošaljete ili prikažete šemu električnog kombinovanog štednjaka 2 plin- 2 struja.
Da skratim priču i da vam kažem moj problem....
Sve se desilo od kada je se uselio mis u njega i skoro sve žice i zgrizo i većinu isekao.Pa sam vam u problemu što nemogu da pohvatam gde je koja sa kojom bila povezana....
Tražio sam po internetu šemu od njega ali nisam uspeo da nađem jer nisam imao nikakvu nalepnicu sa poleđine da bih znao o kom modelu se radi osim ovako iz priložene slike---

Unapred zahvalan :tooo:

Avatar
dejan-dexi
bela tehnika
bela tehnika
Postovi: 575
Pridružen: 25 Apr 2012, 23:30
Location: Beograd
Contact person: Dejan Matejić
Specialty: whitegoods

Re: ISKRA CORONA ŠTEDNJAK 2 plin -2 struja molim za pomoć

Post napisao dejan-dexi » 21 Jun 2015, 00:17

Ako se malo udubis nece biti problem da izmenjas zice i nadjes koja gde ide,
Prekidaci su ti najlaksi , sve pise na njima, pa predlazem da krenes od njih :pivopije:

Baki1105
_
_
Postovi: 7
Pridružen: 01 Mar 2011, 07:34
Location: Srbija,Uzice

Re: ISKRA CORONA ŠTEDNJAK 2 plin -2 struja molim za pomoć

Post napisao Baki1105 » 21 Jun 2015, 08:03

Jeste to sve tako brate mili ali ima tu jos nekih stvari sto mi nisu jasne....

Na pimer sto su tu dupli grejaci od rerne,motorcic od rostilja pa ova tri prekidaca sa tinjalicom sto su u kombinaciji sa nekim od njih...,ima tu jos par stvari sto imaju veze sa plinom za bacanje varnice (bar mi se tako cini ) pa cak i jedan otpornik malo veci mozda od 2-3 W ....
-Ali sve to bi mogao i da preskocim mislim to za plin ...to mogu u krajnosti i ovako paliti....
-Posto je to prikljuceno na trofaznu struju i mislim da su ove dve ringle posebno svaka povezana na jednu od R S T faza...ili je sa jednom od ove dve u kombinaciji tj. koja je manje snage .
-Jer bi mi mnogo bilo za rernu da je na jednoj fazi posto nema nigde na grejacima da se vidi koliko su snage.A cini mi se da je jedan samo od 2000 w a plus sto je dupli i ovaj gore je tako nesto oko 1200 w...Dobro ringle bi mi bile lako povezati bar tako mislim jer imam seme od nekih drugih slicnih ovome.

U svakom slucaju hvala ti prijatelju na podrsci ... :yeah:

Avatar
dejan-dexi
bela tehnika
bela tehnika
Postovi: 575
Pridružen: 25 Apr 2012, 23:30
Location: Beograd
Contact person: Dejan Matejić
Specialty: whitegoods

Re: ISKRA CORONA ŠTEDNJAK 2 plin -2 struja molim za pomoć

Post napisao dejan-dexi » 22 Jun 2015, 00:04

Verujem ja u tebe, samo malo maste i ima da radi ko nov :pivopije:

Baki1105
_
_
Postovi: 7
Pridružen: 01 Mar 2011, 07:34
Location: Srbija,Uzice

Re: ISKRA CORONA ŠTEDNJAK 2 plin -2 struja molim za pomoć

Post napisao Baki1105 » 22 Jun 2015, 06:11

Eee prijatelju masta moze da uradi svasta... :tooo:

Avatar
jaro
bela tehnika
bela tehnika
Postovi: 1273
Pridružen: 21 Jun 2009, 11:53
Location: stara pazova
Contact person: jaro
Specialty: whitegoods

Re: ISKRA CORONA ŠTEDNJAK 2 plin -2 struja molim za pomoć

Post napisao jaro » 22 Jun 2015, 06:47

Bez iskustva to nece da ide...
Sta ce ti motor za rostilj, sta ce ti grejac u fioci dole...itd? Eliminisi to sto ti ne treba, bice ti lakse.
Bez alata nema zanata!.....a bez znanja dzaba ti alat!

Baki1105
_
_
Postovi: 7
Pridružen: 01 Mar 2011, 07:34
Location: Srbija,Uzice

Re: ISKRA CORONA ŠTEDNJAK 2 plin -2 struja molim za pomoć

Post napisao Baki1105 » 22 Jun 2015, 17:32

Jaro da sam imao iskustva oko svega ovoga,verovatno nebih ni trazio pomoc ovde na forumu od onih koji imaju iskustva....
Vec bih to uradio sam...tako da neznam sta bih ti odgovorio :roll:

Sve bi to bilo drugacije kad bih imao elektricnu semu ovog kombinovanog sporeta ....lako bih se ja snasao...
Ali polako mislim da cu morati na drugom mestu da trazim pomoc :oklagija

Avatar
dejan-dexi
bela tehnika
bela tehnika
Postovi: 575
Pridružen: 25 Apr 2012, 23:30
Location: Beograd
Contact person: Dejan Matejić
Specialty: whitegoods

Re: ISKRA CORONA ŠTEDNJAK 2 plin -2 struja molim za pomoć

Post napisao dejan-dexi » 22 Jun 2015, 23:04

Pa nisu misevi spakovali u dzepove kompletnu instalaciju i odneli :mrgreen:

Avatar
jaro
bela tehnika
bela tehnika
Postovi: 1273
Pridružen: 21 Jun 2009, 11:53
Location: stara pazova
Contact person: jaro
Specialty: whitegoods

Re: ISKRA CORONA ŠTEDNJAK 2 plin -2 struja molim za pomoć

Post napisao jaro » 23 Jun 2015, 08:53

Semu nema niko, mozda ni Iskra koje vise nema. Ima samo iskustvo.
Kao sto ti Dejan kaze, prekidac=ringla spajas po brojkama, kontakt za tinjalicu je prvi do osovine (sve prekidace paralelno), ostalo je iskustvo, rasporedis po fazama, da se ne greju spojevi, upaljac treba da dobije 220V kad stisnes taster, a rerna...krajeve od grejaca sve spojis na nulu, a ostalo preko termostata i prekidaca do faze.
Bez alata nema zanata!.....a bez znanja dzaba ti alat!

Avatar
bracans
bela tehnika
bela tehnika
Postovi: 459
Pridružen: 19 Apr 2014, 12:49
Location: Novi Sad
Specialty: whitegoods

Re: ISKRA CORONA ŠTEDNJAK 2 plin -2 struja molim za pomoć

Post napisao bracans » 03 Sep 2015, 16:12

Sto se tice elektrike stednjaka sve razdvoj i resavaj pojedinacno svaki prekidac upari sa svakom ringlom, rernu takodje, dodaj napajanje na prekidace i resio si, vazno je sistematicno uraditi a sto se tice plina ostavljam ti ovde par brosura gorenja o plinu, ako te interesuje mogu i ostaviti neka uputstva za plinske elemente stednjaka. Zaboravih za semiranje koristi provodnike sa silikonskom izolacijom odgovarajuceg preseka :)
Prilog
plin kontrola.pdf
(379.27 KiB) Preuzeto 946 puta.
plin prikljucak.pdf
(574.16 KiB) Preuzeto 656 puta.
Za moju svaštaru na googl pretrazi kucati moj electro cool blog.

ZDRAVKO T
bela tehnika
bela tehnika
Postovi: 363
Pridružen: 31 Avg 2010, 12:07
Location: Čapljina - Ljubuški
Warranty service: Bosch Siemens Electrolux Zanussi AEG Končar Vivax
Contact person: ZDRAVKO

Re: ISKRA CORONA ŠTEDNJAK 2 plin -2 struja molim za pomoć

Post napisao ZDRAVKO T » 05 Sep 2015, 12:07

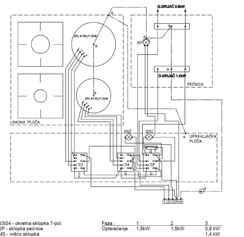
Svi smo ovako počinjali i obično nas zapadali poslovi što drugi neće raditi.Bogu hvala da sam sada u drugog grupi.Bez obzira na sve poslušaj kolege iz ranijih postova i pokušaj problem podjeliti u par skupina i pojedinačno rješavaj bit će ti tako lakše znači uradi pećnicu pa onda kola i doćeš do rješenja.Znaj da svaki šporet dolazi predviđen za trofaznu struju(380V) a premostima u priključnoj kutiji na šporetima ga možemo postaviti da radi na 220V.Pazi se plinske instalacije nemoj je bespotrebno rastavljati već probaj radi li jer za njih već nema djelova a instalacija nije kompatibilna sa našim sadašnjim tako da dijo ćeš najprije naći u "švedskom muzeju".U prilogu su šeme povezivanja za Končar mislim da ako prostudiraš možeš iz njih isto imati rješenje za tvoju situaciju.Sretno..
Prilog
končar pećnica.PNG
Šema povezivanja Končar pećnice
končar5522.PNG
šema povezivanja Končar šporeta
BLAGO ONOM KO RANO POLUDI VAS MU VJEK U VESELJU PROĐE

Odgovori
  • Slične teme
    Odgovori
    Pregledano
    Zadnji post

Natrag na “OSTALI APARATI”