Schneider TV6304 DTV3 E/W problem
Pravila foruma
Naslov teme treba da bude u formatu: PROIZVOĐAČ, MODEL, KRATAK OPIS KVARA
Nakon rešenog kvara zatvoriti temu >> >UPUTSTVO< u suprotnom ništa ne činiti.
HOME -- SERVISERI -- DALJINSKI -- RAZNA UPUTSTVA
Naslov teme treba da bude u formatu: PROIZVOĐAČ, MODEL, KRATAK OPIS KVARA
Nakon rešenog kvara zatvoriti temu >> >UPUTSTVO< u suprotnom ništa ne činiti.
HOME -- SERVISERI -- DALJINSKI -- RAZNA UPUTSTVA
- Stolle
- Preminuo
- Postovi: 19098
- Pridružen: 12 Avg 2006, 23:35
- Location: Srbija
- Specialty: tv-multimedia
- Lokacija: Dimitrovgrad
Re: Tv Schneider tv6304 problem E/W
Na emitor, ne kolektor.
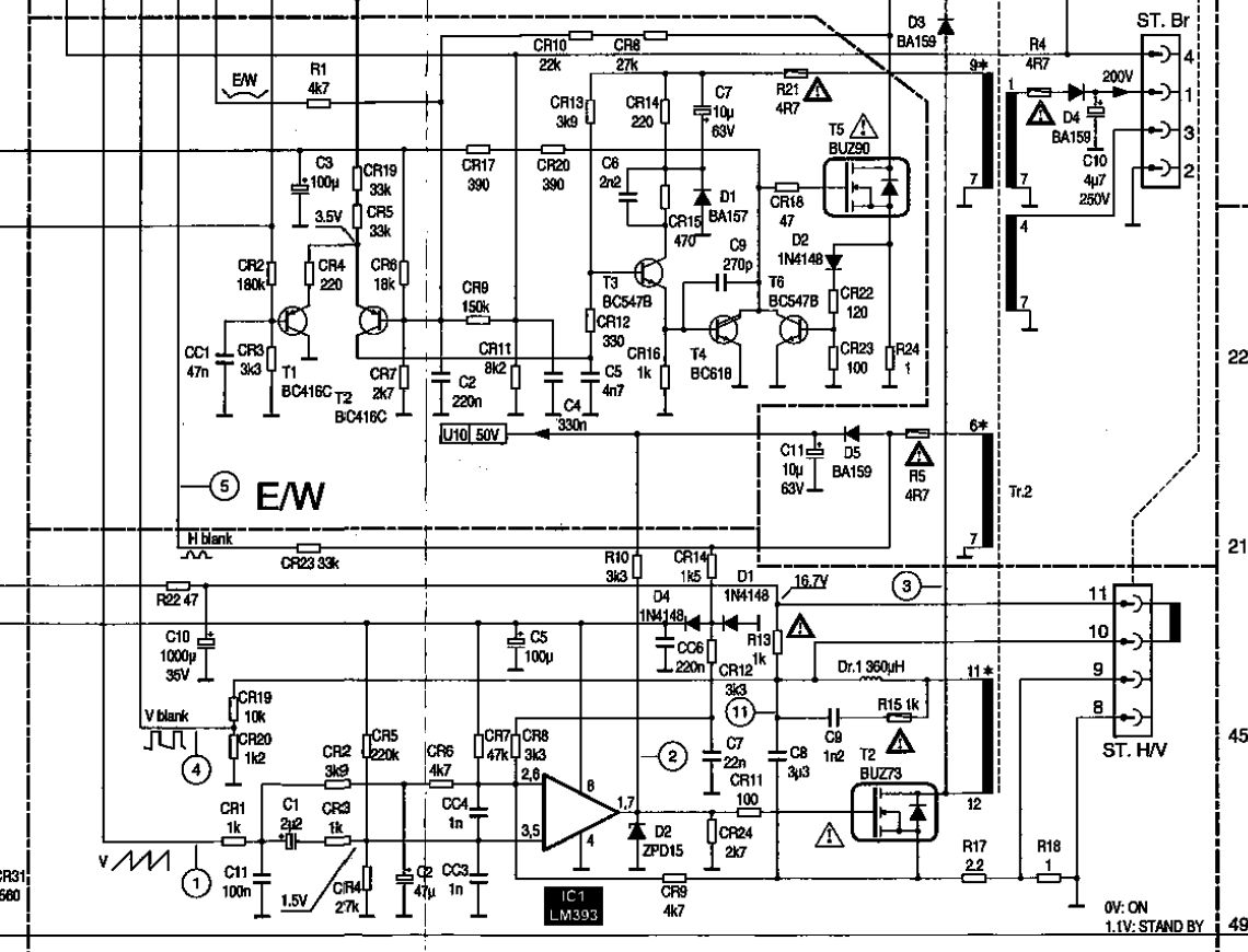
Evo šeme:
Evo šeme:
"29 poslednjih dana u mesecu je najteže"
- miodrag popovic
- gx

- Postovi: 3300
- Pridružen: 08 Nov 2006, 21:08
- Location: Srbija
- Phone number: 00381638773821
- Specialty: tv
- Lokacija: Pančevo Braće Jovanović 56
Re: Schneider TV6304 DTV3 E/W problem
T6 bi trebao biti strujno ogranicenje i tu je da spreci izgaranje FET-a,tako mi djeluje sa sheme,tj otvori ga sasvim da se ne pregreva
Strasno resenje boli glava gledam shemu neverujem,ja bih zamenio C5 8,2nF i D2 UF4006
Strasno resenje boli glava gledam shemu neverujem,ja bih zamenio C5 8,2nF i D2 UF4006
Ko izgubi dobitak, taj dobija gubitak
Re: Schneider TV6304 DTV3 E/W problem
Jasno je meni sto pisete, ali meni je fet stalno otvoren i zato gori, dioda D2 nema ne postoji na sasija tako je fabricki i 5 pin sa trafoa je slobodan tj. nigde nije vezan, blok 8,2 nf sam skidao i proveravao kapacitet i on je u redu, svaki element u pobudi sam proverio ali dzaba, ne moze niko da plati ovaj napor i provedeno vreme, ali izinatio sam se i ne odustajem do kraja, jedino sto razmisljam je na trafo, sta mislite vi moze li biti da je trafo problem, mada sam ga merio omski i dobro pokazuje???
- Stolle
- Preminuo
- Postovi: 19098
- Pridružen: 12 Avg 2006, 23:35
- Location: Srbija
- Specialty: tv-multimedia
- Lokacija: Dimitrovgrad
Re: Schneider TV6304 DTV3 E/W problem
To sa D2 ne može da bude dobro nikako. Da je nije skinuo neko?
"29 poslednjih dana u mesecu je najteže"
Re: Schneider TV6304 DTV3 E/W problem
Nije niko skinuo, tako je fabricki, TV nije uopste popravljan, ja sam ga sad prvi otvorio!
Vidi se po stampi da fabricki nije zaletovana dioda, stampa je slobodna, i meni je cudno sto u semi postoji dioda a na ploci je uopste nema, za sad nemam vise ni jednu ideju sta dalje da radim-menjam...
Vidi se po stampi da fabricki nije zaletovana dioda, stampa je slobodna, i meni je cudno sto u semi postoji dioda a na ploci je uopste nema, za sad nemam vise ni jednu ideju sta dalje da radim-menjam...
- cacko85
- gx

- Postovi: 1746
- Pridružen: 03 Dec 2008, 17:51
- Location: Macedonia
- Contact person: Slavche
- Specialty: tv-multimedia
- Lokacija: Sveti Nikole
- Kontakt:
Re: Schneider TV6304 DTV3 E/W problem
A da zemenish T6 i pridruzne elementi kao shta je rekao miodrag, ocigledno da je to strujno ogranicenje i kad od provodi nosi gejt na masi. Ne meri nego menjaj, cesto se to deshava posebno sa poluprovodnici da na unimer su ispravni a u kolo ne rade.
www.facebook.com/slavceelectronics
Re: Schneider TV6304 DTV3 E/W problem
Zamenio sam i T6 i elemente oko njega, ubacio sam diodu D2 koja uopste nije bila fabricki ubacena i potpuno opet ista stvar, izgoreo mi je BUZ90 po peti put, krene HIS i toliko se ugreje fet za 1 sek da to nije normalno, definitivno nemam vise resenja, da sacekam jos nekog kolegu na savetu pa da zatvaravam ovo s....!
Posle svega ovog jedino mogu da sumnjam na split trafo, sta vi mislite???
Posle svega ovog jedino mogu da sumnjam na split trafo, sta vi mislite???
-
NEDIM
- _

- Postovi: 47
- Pridružen: 29 Avg 2011, 17:33
- Location: tesanj
- Contact person: hajrudin
- Specialty: audio
Re: Schneider TV6304 DTV3 E/W problem
Velika vjerovatnoca vn trafo
- milan
- Preminuo
- Postovi: 4426
- Pridružen: 19 Avg 2006, 22:38
- Location: Novi Sad
- Specialty: tv-multimedia
Re: Schneider TV6304 DTV3 E/W problem
Pitanje, nisam shvatio da kada otkacis FET i ukljucis tv, dali dobijes visoki napon i sliku? Ili tog nema nikako, varijanta sa sijalicom i bez nje.
Re: Schneider TV6304 DTV3 E/W problem
Ne, kad otkacim FET nema visokog napona i ne krece HIS, kad zakacim FET krene HIS i odmah izgori FET, sa sijalicom radi mreza i ne gori FET ali tad ne radi HIS, sumnjam nan split trafo, jer nemam vise resenja!!!
- milan
- Preminuo
- Postovi: 4426
- Pridružen: 19 Avg 2006, 22:38
- Location: Novi Sad
- Specialty: tv-multimedia
Re: Schneider TV6304 DTV3 E/W problem
split trafo, pobuda od HISa da li je odgovarajuca.
Re: Schneider TV6304 DTV3 E/W problem
Ok kazete da je split trafo, ali u tom slucaju bi trebao goreti HIS tranzistor a ne fet u E/W, to mi je malo cudno...
Kako mislite dali je pobuda od HIS-a odgovarajuca, ne razumem?
Kako mislite dali je pobuda od HIS-a odgovarajuca, ne razumem?
- ivica-servis
- Udaljen sa foruma zbog nedoličnog ponašanja
- Postovi: 75
- Pridružen: 18 Nov 2010, 00:32
- Location: Vranje
- Contact person: Ivica
- Specialty: tv
Re: Schneider TV6304 DTV3 E/W problem
nisam ulazio u problematiku ali nekad je nasto lakse prepraviti po slicnoj semi nego popraviti-manje ces vremena izgubiti,vidim da se to oteglo
I dodje starac vodenim skuterom u mirno more gde deca uce da plivaju i dize talase...
- milan
- Preminuo
- Postovi: 4426
- Pridružen: 19 Avg 2006, 22:38
- Location: Novi Sad
- Specialty: tv-multimedia
Re: Schneider TV6304 DTV3 E/W problem
Oscilogrami 7 i 8 prvenstveno. Imas im oblik i velicinu na semi sa darlinkton tranz.
Po meni neovisno da li je fet ili darlinkton kada mu se otkaci gejt ili baza, mora imati visoki napon.
Kada uporedis jednostavniju semu dve diode na red su u modulatoru, na kome se vrsi podesavanje geometrije, i to promenama na donjoj diodai.
Jedna ti je dioda u tranzistoru t2 a druga u t5. Ako je ona dioda u t2 dobra, mozes mesto feta ili darlinktona staviti samo diodu, i to mora raditi
sa nekom losom geometrijom, (slika uza i kriva po horizontali)
Ti si u startu napisao E/W problem, ali to nije jer nemas sliku da bi video da je tu neka deformacija.
Ti nemas visoki napon, fet otkaci ili izvadi i stavi diodu umesto njega i onda trazi kvar.
T2 je tranzistor u HIS_u S2055A
Po meni neovisno da li je fet ili darlinkton kada mu se otkaci gejt ili baza, mora imati visoki napon.
Kada uporedis jednostavniju semu dve diode na red su u modulatoru, na kome se vrsi podesavanje geometrije, i to promenama na donjoj diodai.
Jedna ti je dioda u tranzistoru t2 a druga u t5. Ako je ona dioda u t2 dobra, mozes mesto feta ili darlinktona staviti samo diodu, i to mora raditi
sa nekom losom geometrijom, (slika uza i kriva po horizontali)
Ti si u startu napisao E/W problem, ali to nije jer nemas sliku da bi video da je tu neka deformacija.
Ti nemas visoki napon, fet otkaci ili izvadi i stavi diodu umesto njega i onda trazi kvar.
T2 je tranzistor u HIS_u S2055A
- cacko85
- gx

- Postovi: 1746
- Pridružen: 03 Dec 2008, 17:51
- Location: Macedonia
- Contact person: Slavche
- Specialty: tv-multimedia
- Lokacija: Sveti Nikole
- Kontakt:
Re: Schneider TV6304 DTV3 E/W problem
Na slike od ove dve otkolnske, koja je ugradzena u taj tv??
Oscilogram 6 EW signal shta dolazi od PIP (ili od gde ti znam) dal imash, morash tu i osclioskop da upotrebish.
Ako nisi tia BCxxx tranzistori u EW sve menjaj bez merenja, oni kondenzatori C6,7,8,9 promeni i njima mozda imaju neka uloga tu.
@ Milam ne vidim nikakva veza pomedzu T2 i EW to trebalo bi da bude vertikala.
Kad izgori fet kazesh da imash HV, dal ima neki raster skupljen po horizontala itd...
Oscilogram 6 EW signal shta dolazi od PIP (ili od gde ti znam) dal imash, morash tu i osclioskop da upotrebish.
Ako nisi tia BCxxx tranzistori u EW sve menjaj bez merenja, oni kondenzatori C6,7,8,9 promeni i njima mozda imaju neka uloga tu.
@ Milam ne vidim nikakva veza pomedzu T2 i EW to trebalo bi da bude vertikala.
Kad izgori fet kazesh da imash HV, dal ima neki raster skupljen po horizontala itd...
- Prilog
-
- dtv3 otklonski.jpg (28 KiB) Pregledano 1665 puta.
www.facebook.com/slavceelectronics
- milan
- Preminuo
- Postovi: 4426
- Pridružen: 19 Avg 2006, 22:38
- Location: Novi Sad
- Specialty: tv-multimedia
Re: Schneider TV6304 DTV3 E/W problem
T2 je tranzistor u HIS_u S2055A
Mada i u vertikali nosi istu oznaku po semama, u praksi neznam.Dodao sam gore na koji mislim T2
Mada i u vertikali nosi istu oznaku po semama, u praksi neznam.Dodao sam gore na koji mislim T2
- cacko85
- gx

- Postovi: 1746
- Pridružen: 03 Dec 2008, 17:51
- Location: Macedonia
- Contact person: Slavche
- Specialty: tv-multimedia
- Lokacija: Sveti Nikole
- Kontakt:
Re: Schneider TV6304 DTV3 E/W problem
Moja greshka ni sam video da imaju iste oznake na pozicije na ploca.

www.facebook.com/slavceelectronics
Re: Schneider TV6304 DTV3 E/W problem
Ok, probacu da stavim diodu umesto FET-a pa cu videti dali cu dobiti visoki napon, inace sliku ne mogu uopste ni da vidim jer toliko brzo izgori FET koliko krene HIS, javljam rezultat!
Re: Schneider TV6304 DTV3 E/W problem
Stavio sad diodu umesto FET-a i mrtva stvar, ne krece HIS, ne gori dioda, kad postavim FET krene i izgori odmah, posle svega ovog jedino jos trafo mi ostaje da promenim...
- milan
- Preminuo
- Postovi: 4426
- Pridružen: 19 Avg 2006, 22:38
- Location: Novi Sad
- Specialty: tv-multimedia
Re: Schneider TV6304 DTV3 E/W problem
Sta je sa oscilogramima, da li imas pobudu ?Stavio sad diodu umesto FET-a i mrtva stvar, ne krece HIS,
-
- Slične teme
- Odgovori
- Pregledano
- Zadnji post
-
-
TV SCHNEIDER Chassis TV9(1) - Varnice
napisao sveta » 16 Dec 2007, 00:43 » u Servisiranje CRT Televizora - 25 Odgovori
- 5699 Pregledano
-
Zadnji post napisao magicni
20 Feb 2008, 09:58
-
-
-
TV SCHNEIDER Chassis 176 (17.6) - Blokira (RESENO)
napisao milans01 » 25 Feb 2008, 11:24 » u Servisiranje CRT Televizora - 8 Odgovori
- 1267 Pregledano
-
Zadnji post napisao milans01
04 Mar 2008, 18:36
-
-
-
TV SCHNEIDER STV550 Chassis 11AK19-5 - Ne startuje
napisao tvmen » 13 Mar 2008, 19:55 » u Servisiranje CRT Televizora - 31 Odgovori
- 5004 Pregledano
-
Zadnji post napisao tvmen
22 Mar 2008, 18:24
-
-
-
TV SCHNEIDER STV7012 Chassis STV12 - Bezi sa kanala
napisao stojkePN » 08 Avg 2008, 23:44 » u Servisiranje CRT Televizora - 14 Odgovori
- 2158 Pregledano
-
Zadnji post napisao rubin_miki
18 Avg 2008, 02:25
-
-
-
TV SCHNEIDER SCINEMA 28100T - Potreban dump
napisao Mcu » 14 Avg 2008, 01:55 » u Servisiranje CRT Televizora - 1 Odgovori
- 576 Pregledano
-
Zadnji post napisao nec
14 Avg 2008, 06:14
-
-
-
TV SCHNEIDER Chassis DTV101 - Slika deformisana (RESENO)
napisao lnicks » 16 Avg 2008, 20:55 » u Servisiranje CRT Televizora - 8 Odgovori
- 1370 Pregledano
-
Zadnji post napisao lnicks
21 Avg 2008, 09:04
-
-
-
TV SCHNEIDER STV512 Chassis TV6 - Potrebna shema (REŠENO)
napisao markovicg1 » 13 Okt 2008, 13:07 » u Servisiranje CRT Televizora - 6 Odgovori
- 1422 Pregledano
-
Zadnji post napisao markovicg1
23 Okt 2008, 14:50
-
-
-
TV SCHNEIDER SCENARO2819 TV17 17.7 Zvuk [REŠENO]
napisao miligor » 18 Dec 2008, 10:59 » u Servisiranje CRT Televizora - 31 Odgovori
- 6975 Pregledano
-
Zadnji post napisao miligor
31 svi 2015, 00:22
-

