electrolux-EDI96150 (RESENO)
Urednici: goranfri,nike,sim,Honorarac
Pravila foruma
BT-expert info - BTexpert forumi
U naslov teme prvo pisati ime proizvođača, zatim oznake modela bez crtica i razmaka i kratak opis kvara. U post obavezno upisati ID ili EAN oznake sa poleđine aparata u suprotnom tema će biti obrisana.
Praktikujemo da na kraju opišemo kako smo rešili problem. Zatim zatvorimo temu >UPUTSTVO<
PRILIKOM POSTAVLJANJA PITANJA U VEZI ELEKTRONSKOG MODULA OBAVEZNO POPIŠITE SVE OZNAKE sa ploče i sa nalepnica, dobro bi došla i po koja fotografija.
BT-expert info - BTexpert forumi
U naslov teme prvo pisati ime proizvođača, zatim oznake modela bez crtica i razmaka i kratak opis kvara. U post obavezno upisati ID ili EAN oznake sa poleđine aparata u suprotnom tema će biti obrisana.
Praktikujemo da na kraju opišemo kako smo rešili problem. Zatim zatvorimo temu >UPUTSTVO<
PRILIKOM POSTAVLJANJA PITANJA U VEZI ELEKTRONSKOG MODULA OBAVEZNO POPIŠITE SVE OZNAKE sa ploče i sa nalepnica, dobro bi došla i po koja fotografija.
electrolux-EDI96150 (RESENO)
veliki pozdrav od mene, imam problem sa pomenutom mašinom za sušenje veša, neće da uključuje grijač nikakvu grešku neizbacuje na displeju, dali neko ima slučajno šemu ili service manuel,bubanj okreće,NTC ispravan, grijači ispravni. Electrolux EDI 96150 , INSIGHT Iron Aid, br. modula:AKO 712148-03
- milan
- Preminuo
- Postovi: 4426
- Pridružen: 19 Avg 2006, 22:38
- Location: Novi Sad
- Specialty: tv-multimedia
Re: electrolux-EDI96150
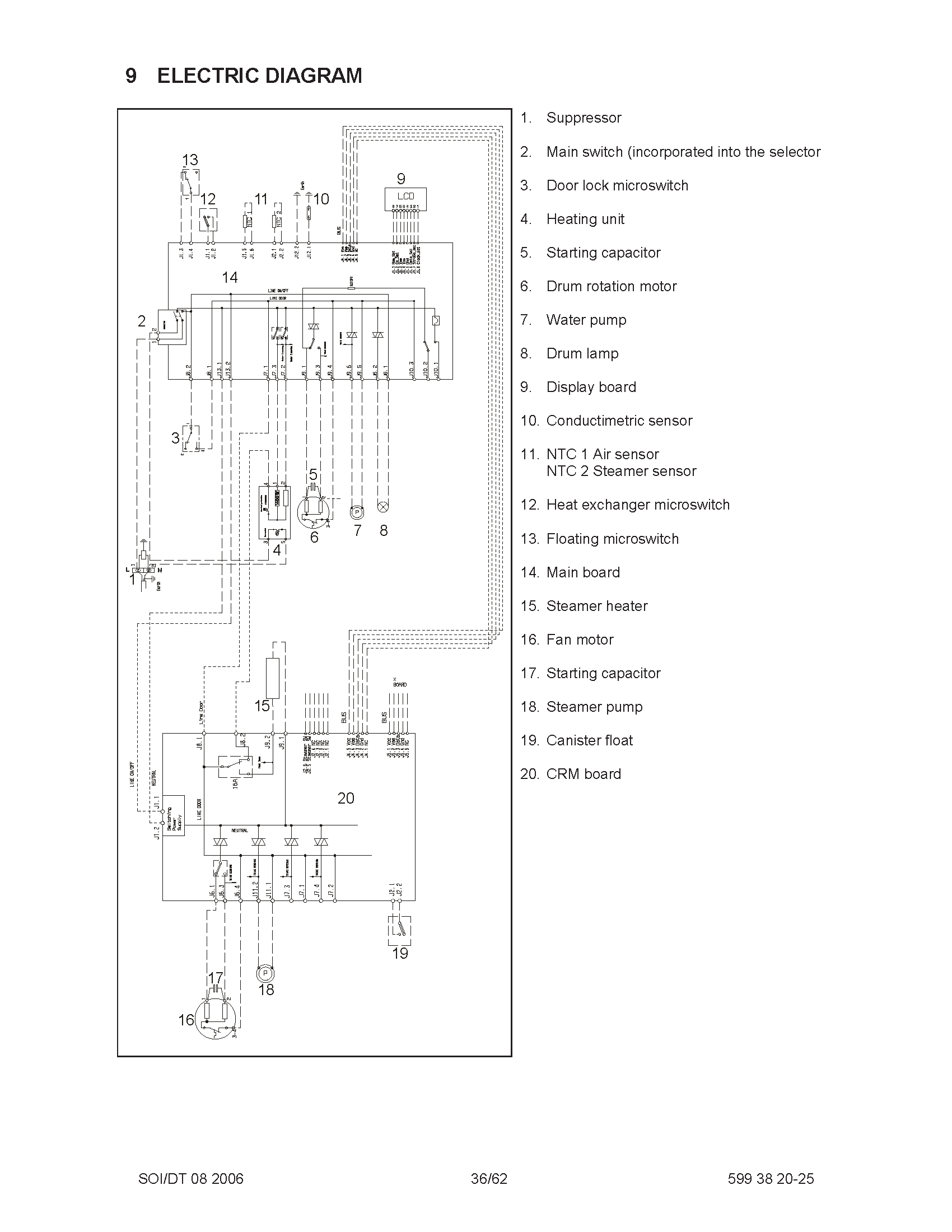
Dokumentacija postoji za ovu masinu u Expert forumu.
Evo ti sema, za koju neznam da li ti odgovara jer nisi napisao oznake.
Evo ti sema, za koju neznam da li ti odgovara jer nisi napisao oznake.
Re: electrolux-EDI96150
napon ne dolazi na grijač, a što se tiče oznaka to je sve što ima, pokušaću sa šemom pa ću usput slikati par slika
-
ZDRAVKO T
- bela tehnika

- Postovi: 363
- Pridružen: 31 Avg 2010, 12:07
- Location: Čapljina - Ljubuški
- Warranty service: Bosch Siemens Electrolux Zanussi AEG Končar Vivax
- Contact person: ZDRAVKO
Re: electrolux-EDI96150
Možda ovo pomogne,
- Prilog
-
EDI96150 OSN.DIJAG..PDF- (47.13 KiB) Preuzeto 250 puta.
-
EDI96150.PDF- (73.24 KiB) Preuzeto 223 puta.
BLAGO ONOM KO RANO POLUDI VAS MU VJEK U VESELJU PROĐE
- Electrolux servis
- _

- Postovi: 3
- Pridružen: 04 Jan 2012, 00:24
- Location: BEOGRAD
- Warranty service: ELECTROLUX
ZANUSSI
AEG
GREE
SAMSUNG - Contact person: SASA
Re: electrolux-EDI96150
Samo ti preletuj rele grejaca na stampi
i bice sve ok.
Imao sam vise puta problem sa istim
pozzz
i bice sve ok.
Imao sam vise puta problem sa istim
pozzz
Re: electrolux-EDI96150
hvala na šemama OK su, što se tiče releja i oni su OK, termostati na grijaču OK, NTC dobar, mašina krene da radi jedno 30 sekundi i stane, nikakvu grešku neizbacuje
Re: electrolux-EDI96150
pozdrav i hvala svima na pomoći, problem je rješen uz pomoć test programa u pitanju je bila greška E32
-
- Slične teme
- Odgovori
- Pregledano
- Zadnji post
-
-
Electrolux EWW1690 radi kod zamjene faze i nule (rješeno)
napisao Ivek » 25 Apr 2014, 07:49 » u VEŠ MAŠINE - 7 Odgovori
- 1646 Pregledano
-
Zadnji post napisao Ivek
03 svi 2014, 20:39
-
-
-
AEG Electrolux Lavamat L88819 Greška E59 ODUSTAO
napisao djolejr » 06 Feb 2018, 12:03 » u VEŠ MAŠINE - 5 Odgovori
- 2815 Pregledano
-
Zadnji post napisao jaro
10 Feb 2018, 07:45
-
-
- 4 Odgovori
- 1606 Pregledano
-
Zadnji post napisao miodrag popovic
23 Jun 2019, 11:33
-
- 2 Odgovori
- 819 Pregledano
-
Zadnji post napisao ZDRAVKO T
19 Jul 2024, 12:30
-
-
Sušilica Electrolux TC09H54HW - ne kreće sa radom - E91
napisao junuzovic » 27 Jul 2024, 10:48 » u VEŠ MAŠINE - 4 Odgovori
- 1263 Pregledano
-
Zadnji post napisao junuzovic
30 Jul 2024, 07:43
-
-
-
Masina za susenje vesa Electrolux EW7H438B ;prod.no:916098204/00
napisao ubljanin » 01 Okt 2024, 20:41 » u VEŠ MAŠINE - 11 Odgovori
- 1801 Pregledano
-
Zadnji post napisao ubljanin
25 Okt 2024, 08:04
-
